ADU RENOVATION
Single Family Residence
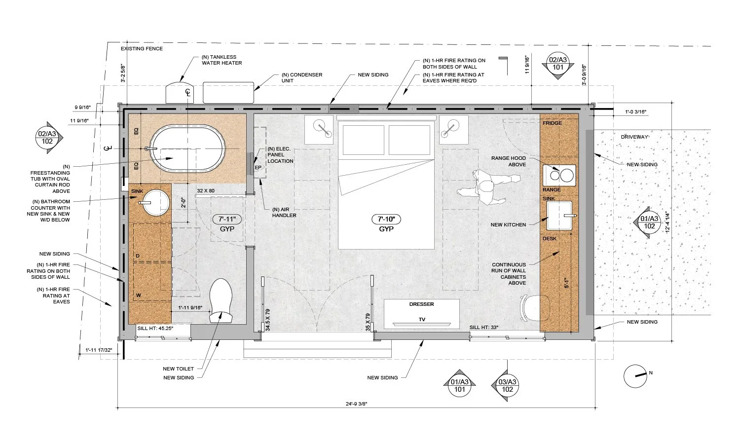
The project transforms a single-car garage in Eagle Rock, Los Angeles into a compact accessory dwelling unit. Working within a tight budget, the design focuses on interior clarity and durable, affordable materials.
Waterproof MDF is used throughout the kitchen/workspace and bathroom/laundry areas, creating a cohesive material language. Two primary built-in elements organize the space: a vertical kitchen intervention along one wall and a horizontal bathroom volume on the opposite side.
The kitchen is conceived as a hybrid surface—functioning as a counter at one end and a desk at the other—with open shelving above for both kitchen storage and books. In the bathroom, the MDF wraps the room, merging counter and wainscoting into a single continuous gesture that simplifies construction while giving the space a calm, unified character.
SITE: Los Angeles, CA
SIZE: 265 SF
STATUS: Concept
