INFO
PROJECTS
EXPERIENCE
PRESS
Menu
INFO
PROJECTS
EXPERIENCE
PRESS
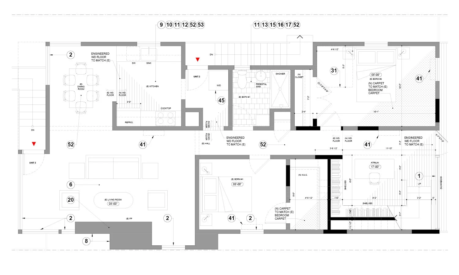
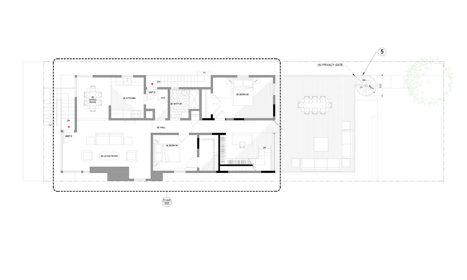
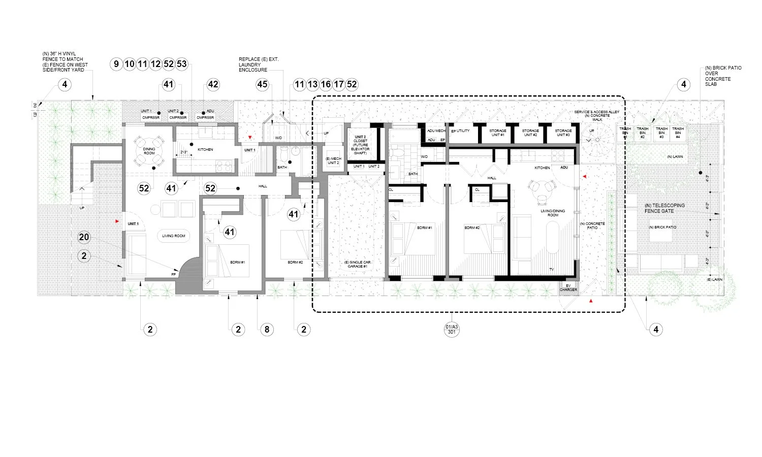
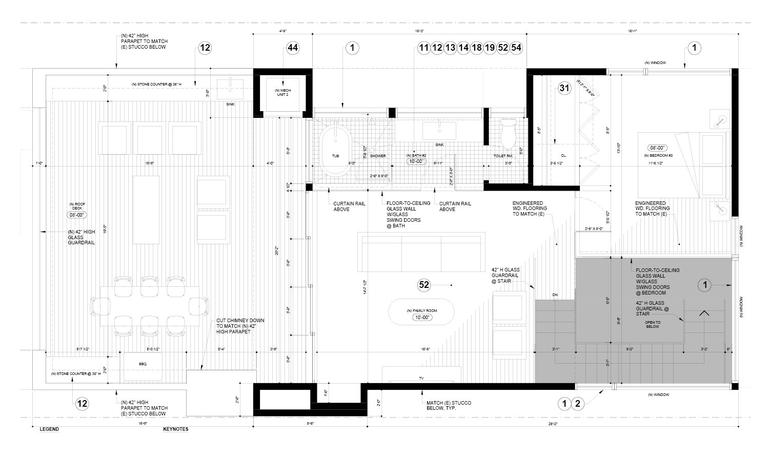
BEACHFRONT RENOVATION
Multifamily Residence
SITE:
Hermosa Beach, CA
STATUS:
Concept